一、應用背景
北海騰飛花園項目基坑上層挖土完成后,施工進入基礎、集水坑、電梯井開挖階段。大多數項目中均存在連體集水坑和連體電梯基坑,相互之間存在著復雜的交接關系,而且坑壁需要放坡,傳統二維模式下,現場施工人員只能根據二維圖紙想象或手繪三維圖紙理解三者之間的相互關系,挖土放線時無從下手,方向定位比較困難,精度無法保證。
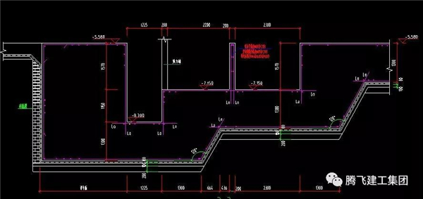
20#樓某處連體坑剖面圖▲
20#樓某處連體基坑平面圖▲
現場施工人員手繪三維圖▲
圖中紅框內為兩個坑壁交接位置,不容易精準確定▲
二、應用目標
1、三維可視化,以三維的方式展示多連坑及基坑與周邊環境的關系,方便施工人員對圖紙的理解。
20#樓某處連體坑三維示意圖▲
2、出挖坑放線圖,基坑模型創建完成后,出具平面、剖面、三維圖紙,標注坑的水平定位和標高,方便施工人員測量放線。
3、工程量統計,使用明細表進行工程量統計,也可劃分流水段統計工程量,也可將模型導入廣聯達BIM5D,更方便劃分流水段和工程量統計。
三、建模方法
1、新建項目文件
創建結構項目樣板,在此基礎上進行項目環境的設置和模型的創建。基礎模型最好單獨放置,方便后面使用。
2、圖紙及族準備
刪除不相干圖元構件及注釋,計算出柱坑等上口尺寸,基礎階段所用到的族有:土(用板模擬,修改材質)、基礎筏板、承臺、坑空心族、柱墩、后澆帶、墊層等。
3、創建地基
地基土壤不要使用地形創建,可以使用樓板來創建地基。因為后邊創建的集水坑、基礎、電梯基坑族要創建空心模型,放置這些族的時候可以對地基(用樓板繪制)形成剪切。
4、創建筏板
使用REVIT系統族“結構基礎-基礎底板”進行創建,命名與地基區分。地基和筏板是兩個主要的主體,其余構件都是放置在這兩個主體之上。
5、基坑、集水坑、電梯基坑族的創建
A.使用公制常規模型族樣板新建族文件,如下圖所示:
B、設置族參數:
C:創建實體模型并按照此模型創建空心模型
6、顯示控制
挖坑族的各邊界是基礎各構件墊層的外邊界,其尺寸為各構件尺寸加上墊層厚度。依次放置集水坑空心族、柱墩空心族、后澆帶空心族。基礎構件較多,相互之間交錯,因此需要設置過濾器對構件的顯示進行控制,從而清晰直觀的查看模型和出圖。
四、價值與收益
BIM技術輔助基坑精確開挖的過程,也是利用BIM工具進行精細建模、分析調整之后體現結果的過程。應用深化過的三維圖紙,不僅通過3D模擬技術實現了精確化設計,還會有效的提高基坑開挖的效率,利用精細化的基坑模型給出所有交接位置的精確坐標,放線及開挖有理有據,減少施工過程中少挖或過挖現象。對縮短工期、降低工程造價將產生積極的影響。